Reana del Rojale: bicamere in classe energetica A
Scopri la perfetta armonia tra innovazione e tradizione nel nuovo…
210.000€
Via Nogaredo, Passons, Pasian di Prato, Udine, Friuli-Venezia Giulia, 33037, Italia
Immobili in vendita Udine e provincia.
550.000€
















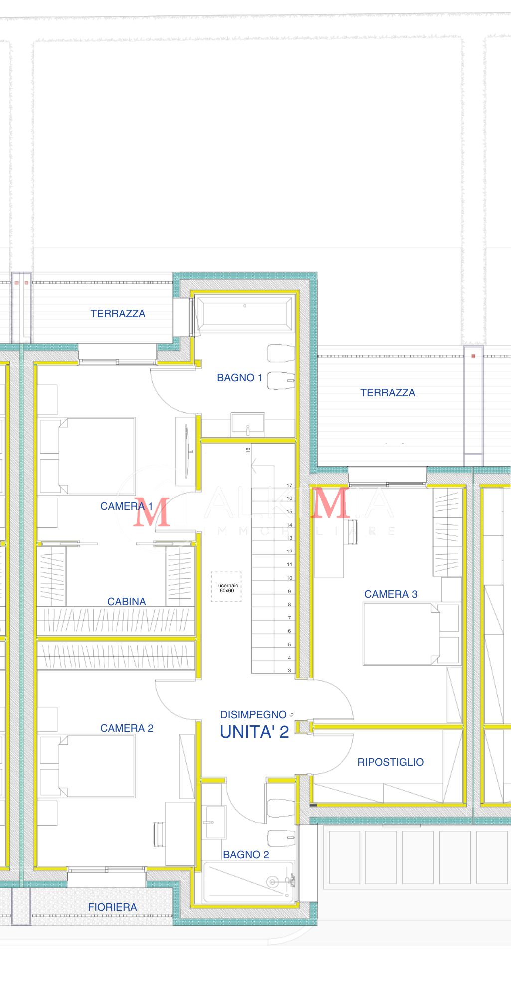
Pasian di Prato, nella frazione di Passons, a pochi minuti dal centro, all’interno di un nuovo ed esclusivo complesso in fase di realizzazione composto da sei ville, proponiamo una moderna villa con quattro camere, certificata in classe energetica A4. L’abitazione si distingue per il design contemporaneo, per gli spazi generosi e per la grande luminosità garantita dalle ampie vetrate che caratterizzano la zona giorno.
La villa si sviluppa su due livelli, al piano terra si trova l’ingresso che conduce a un elegante soggiorno con cucina separata, affacciato su un meraviglioso giardino privato di 128 mq, ideale per momenti di relax in totale privacy; un comodo disimpegno ci conduce al bagno di servizio e alla pratica lavanderia con porta finestra ed un pratico ripostiglio sottoscala.
Al primo piano un disimpegno ci conduce a una spaziosa camera matrimoniale con bagno privato con uscita su terrazza comunicante, seconda camera matrimoniale con accesso diretto ad ulteriore terrazzo, due camere singole, un secondo bagno, a un ripostiglio.
La proprietà è completata dall’autorimessa con accesso diretto alla zona giorno ed al giardino privato.
Questa villa è stata progettata secondo i più elevati standard di efficienza energetica e comfort abitativo e di seguito troverete alcune delle caratteristiche costruttive:
Sono inoltre previste detrazioni fiscali sul costo di costruzione dell’autorimessa a favore dell’acquirente.
Possibilità di personalizzare finiture interne.
La fine lavori è prevista per ottobre 2026, con prezzi a partire da 550.000 euro.
Se cerchi una residenza moderna, elegante ed efficiente che unisca comfort, design e tranquillità, questa villa rappresenta una scelta esclusiva e di grande pregio nel panorama immobiliare di Udine.
Contattaci per conoscere tutti i dettagli del progetto, visionare le planimetrie e scoprire tutte le soluzioni disponibili.
Scopri la perfetta armonia tra innovazione e tradizione nel nuovo…
210.000€
Cerchi una casa spaziosa e confortevole a pochi minuti da…
428.000€